Multi-million-pound investment to advance fusion fuel development
UKAEA’s Lithium Breeding Tritium Innovation (LIBRTI) programme announces significant steps to fast-track fusion fuel development.
The UK Atomic Energy Authority (UKAEA)’s £200 million Lithium Breeding Tritium Innovation (LIBRTI) programme has announced a series of significant steps to advance fusion energy development.
The announcement aligns with the UK’s Department for Energy and Net Zero’s recent support for the nation’s fusion programme and budget plans for 2025/2026.
Part of the broader Fusion Futures initiative, LIBRTI focuses on pioneering fusion fuel advancements and stimulating general industry capacity through international collaboration.
Over its four-year span, the programme aims to demonstrate controlled tritium breeding, a critical step for future fusion power plants.
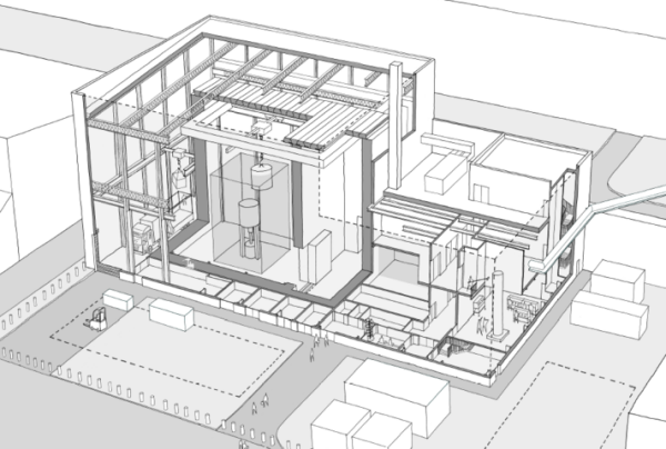
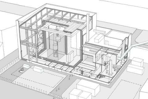
As part of this effort, UKAEA intends to purchase a neutron source which will form the backbone of a first-of-a-kind testbed facility to be built at Culham Campus in Oxfordshire.
UKAEA will also provide £9 million funding for 12 small-scale tritium breeding and digital simulation experiments.
Future fusion power plants will rely on two hydrogen isotopes – deuterium and tritium – to produce energy. Deuterium can be readily extracted from seawater. Tritium, however, is scarce in supply, necessitating the development of methods to produce it sustainably.
To address this challenge, tritium must be produced (or ‘bred’) in a lithium-containing blanket that surrounds the fusion reaction. This ‘breeder blanket’ will perform several tasks:
- Tritium production: React with high-energy neutrons produced during fusion to generate tritium
- Heat absorption: Capturing the immense heat generated by fusion reactions for energy conversion
- Act as a shield: Protecting the machine’s components from radiation damage.
By ensuring a continuous supply of tritium for the fusion machine’s operations, the breeder blanket enables a self-sustaining fuel cycle.
The neutron source
SHINE Technologies, USA, is expected to deliver a 14 mega electron volt (MeV) deuterium-tritium fusion system to provide the LIBRTI neutron source in 2027.
John Norton, LIBRTI Director at UKAEA, explains, “The neutron source selected shall provide neutrons of the same energy as those emitted from a fusion machine, enabling LIBRTI to experiment with a wide range of materials and engineering configurations to shape and advance the breeding models required for next step blanket designs.”
Greg Piefer, CEO of SHINE Technologies, said, “Our partnership with UKAEA’s LIBRTI program is a key milestone for fusion energy. Today, our systems are already achieving up to 50 trillion fusion reactions per second, which makes them the world’s brightest steady-state deuterium-tritium neutron sources. These fusion spectrum neutrons are essential to validate tritium breeding materials critical for scalable fusion energy systems. We’re excited to work with UKAEA to develop next-generation fusion solutions to help pave the way to clean, abundant energy.”
The LIBRTI facility illustration - Image Credit: United Kingdom Atomic Energy Authority




